дата релиза: 06.06.2023
Дизайн среды
Все проекты автора
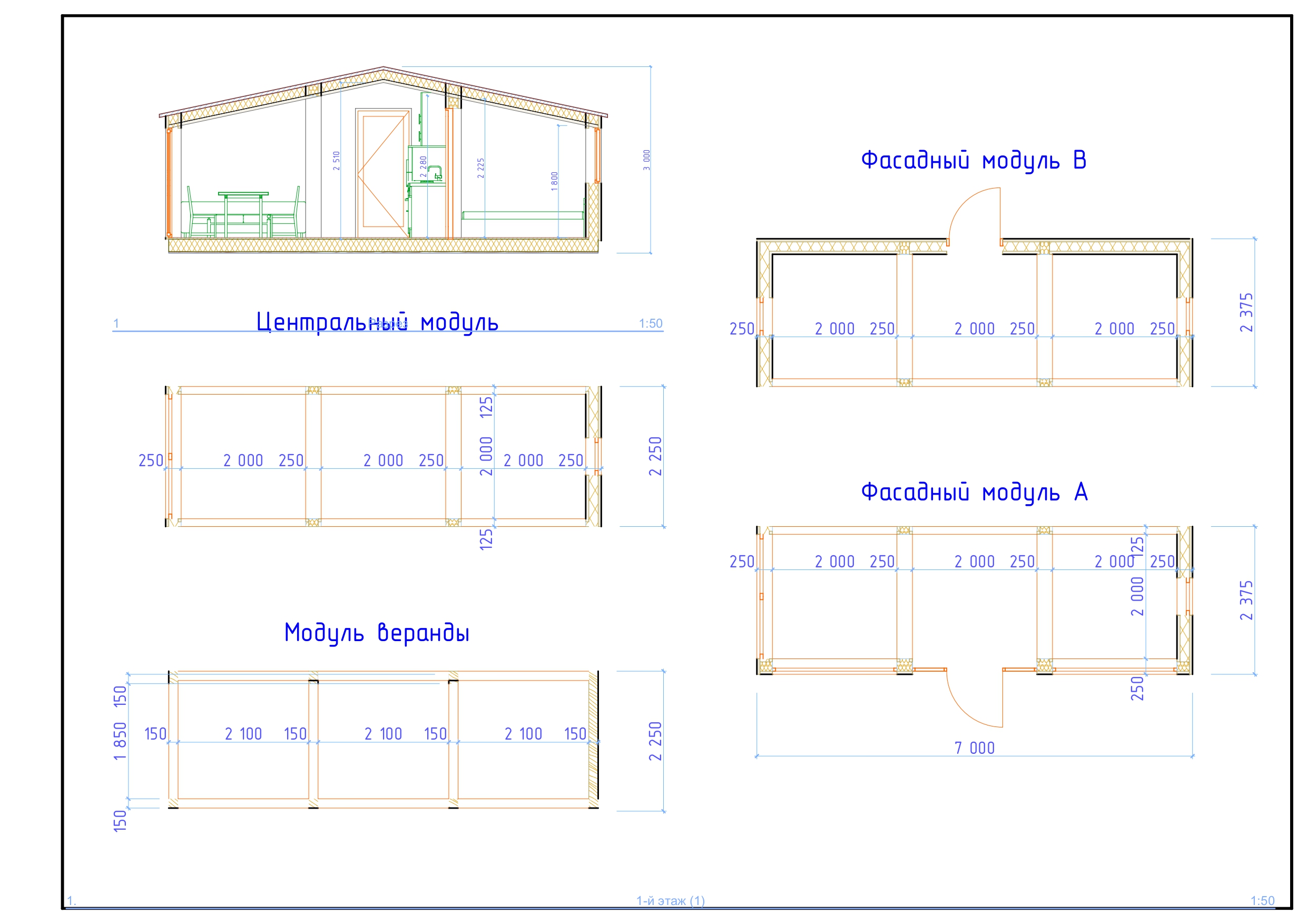
Состоит из 6 универсальных модулей 3х6м 8 различных вариантов планировок площадью от 32 до 120кв.м
Для того чтобы оценивать проекты, вам нужно войти на сайт
Оставайтесь на связи! Следите за нашими анонсами в Telegram!